Final chance to buy

Last home remaining Three bedroom Cullerlie.
A stylish home with driveway and space for 2 cars, large enclosed garden and stunning outlook.
Energy Efficient with Photovoltaic Panels and Air source heat pump, EV charger.

Great Incentives available 5% deposit contribution or LBTT Plus Holiday or Furniture vouchers


Register now
Search for your new home >
View by map view >

No results found

There are no properties matching your search, please try again.

Combining the hustle and bustle of a thriving town, with some of the most stunning countryside Scotland has to offer.  Beautiful walks in the countryside with all the amenities that Inverurie has to offer close by.  Just a short walk takes you to shops , restaurants and cafes.

 

LAST 3 BED FAMILY HOME AT CREST OF LOCHTER, INVERURIE

Now only £254,990 Ask about our incentives.

With stunning views of nearby Bennachie, Crest of Lochter is a development of 53 contemporary three and four bedroom detached and semi-detached homes, just 30 minutes’ drive from Aberdeen.
Choice of Deposit contribution or LBTT.
Flooring, and turf fitted.

 

To request a viewing please contact

 Caroline McNicoll 07796 446881

Email : cmcnicoll@chap.co.uk

Amazing April Offer. Now only £254,990 with choice of Deposit Contribution or LBTT, Furniture or Holiday Vouchers.
INCENTIVES AVAILABLE
Find out more
First impressions – for me, I found it overwhelming it was just so nice.
We spoke to Christine who was wonderful from start to finish.
We knew instantly that it was the home for us. It was a surprisingly spacious design with lots of modern touches - we got everything on our search list. We really liked the kitchen-dining set up, that was something that was really important to us.
Mark, Claire (Ronnie the dog) Crest of Lochter resident

Location

Site Plan

Property Types

Specification

Prices/Availability

boy v2

From nearby Bennachie to the famous North Sea coast, if you love the outdoors, you’re truly spoilt for choice.

bike bennachie

You’ll find the development off the Oldmeldrum Road leading into Inverurie town centre.

For commuters, the train station and town centre are less than a mile away, while the A96 trunk road gets you into Aberdeen in around half an hour.

coffee dog walking

And in a part of the country known for outstanding local produce, it’s no surprise you’ll find a load of great places to eat.

This includes the Kilted Frog delicatessen in West High Street, the renowned Fennel Restaurant, the Drouthy Laird for pub grub, and the nearby Ardrennan restaurant.

Cullerlie with Canopy (D)

Available Plots:

  • 50

Sold

Sold Plots:

  • 1
  • 2
  • 3
  • 4
  • 5
  • 6
  • 7
  • 8
  • 9
  • 10
  • 11
  • 12
  • 13
  • 14
  • 15
  • 16
  • 17
  • 18
  • 19
  • 20
  • 21
  • 22
  • 23
  • 24
  • 25
  • 26
  • 27
  • 28
  • 30
  • 31
  • 29
  • 32
  • 33
  • 34
  • 35
  • 36
  • 37
  • 38
  • 39
  • 40
  • 41
  • 42
  • 43
  • 44
  • 45
  • 46
  • 47
  • 48
  • 49
  • 51
  • 52
  • 53
#15

Balbirnie

2 BED Semi-Detached

SOLD
Download Details >
#15

Balbirnie

2 BED Semi-Detached

SOLD
Download Details >
#8

Kintraw

3 bed end terraced

SOLD

5% deposit contribution

Download Details >
#8

Kintraw

3 bed end terraced

SOLD

5% deposit contribution

Download Details >
#15

Balbirnie

2 BED Semi-Detached

SOLD
Download Details >
#15

Balbirnie

2 BED Semi-Detached

SOLD
Download Details >
#24

Cullerlie with Canopy (D)

3 BED SEMI-DETACHED

SOLD
Download Details >
#24

Cullerlie with Canopy (D)

3 BED SEMI-DETACHED

SOLD
Download Details >
#24

Cullerlie with Canopy (D)

3 BED SEMI-DETACHED

SOLD
Download Details >
#24

Cullerlie with Canopy (D)

3 BED SEMI-DETACHED

SOLD
Download Details >
#16

Callanish

4 BED DETACHED (with Single Garage)

SOLD
Download Details >
#1

Achmore

3 BED SEMI-DETACHED

SOLD
Download Details >
#6

Cullerlie with Porch

3 BED SEMI-DETACHED

SOLD
Download Details >
#16

Callanish

4 BED DETACHED (with Single Garage)

SOLD
Download Details >
#17

Ardblair

3 BED DETACHED (With Single Garage)

SOLD
Download Details >
#1

Achmore

3 BED SEMI-DETACHED

SOLD
Download Details >
#6

Cullerlie with Porch

3 BED SEMI-DETACHED

SOLD
Download Details >
#15

Balbirnie

2 BED Semi-Detached

SOLD
Download Details >
#15

Balbirnie

2 BED Semi-Detached

SOLD
Download Details >
#17

Ardblair

3 BED DETACHED (With Single Garage)

SOLD
Download Details >
#17

Ardblair

3 BED DETACHED (With Single Garage)

SOLD
Download Details >
#8

Kintraw

3 bed end terraced

SOLD

5% deposit contribution

Download Details >
#8

Kintraw

3 bed end terraced

SOLD

5% deposit contribution

Download Details >
#18

Dunbeath

4 BED DETACHED (WITH SINGLE GARAGE)

SOLD
Download Details >
#24

Cullerlie with Canopy (D)

3 BED SEMI-DETACHED

SOLD
Download Details >
#24

Cullerlie with Canopy (D)

3 BED SEMI-DETACHED

SOLD
Download Details >
#16

Callanish

4 BED DETACHED (with Single Garage)

SOLD
Download Details >
#25

Lochbuie II - with detached garage

4 BED DETACHED (with detached garage)

SOLD
Download Details >
#28

Ormaig II - with detached garage

4 BED DETACHED (with detached garage)

SOLD
Download Details >
#28

Ormaig II - with detached garage

4 BED DETACHED (with detached garage)

SOLD
Download Details >
#25

Lochbuie II - with detached garage

4 BED DETACHED (with detached garage)

SOLD
Download Details >
#1

Achmore

3 BED SEMI-DETACHED

SOLD
Download Details >
#6

Cullerlie with Porch

3 BED SEMI-DETACHED

SOLD
Download Details >
#8

Kintraw

3 bed end terraced

SOLD

5% deposit contribution

Download Details >
#8

Kintraw

3 bed end terraced

SOLD

5% deposit contribution

Download Details >
#16

Callanish

4 BED DETACHED (with Single Garage)

SOLD
Download Details >
#10

Lochbuie - with single garage

4 BED DETACHED (WITH SINGLE GARAGE)

SOLD
Download Details >
#16

Callanish

4 BED DETACHED (with Single Garage)

SOLD
Download Details >
#10

Lochbuie - with single garage

4 BED DETACHED (WITH SINGLE GARAGE)

SOLD
Download Details >
#18

Dunbeath

4 BED DETACHED (WITH SINGLE GARAGE)

SOLD
Download Details >
#6

Cullerlie with Porch

3 BED SEMI-DETACHED

SOLD
Download Details >
#6

Cullerlie with Porch

3 BED SEMI-DETACHED

SOLD
Download Details >
#8

Kintraw

3 bed end terraced

SOLD

5% deposit contribution

Download Details >
#8

Kintraw

3 bed end terraced

SOLD

5% deposit contribution

Download Details >
#17

Ardblair

3 BED DETACHED (With Single Garage)

SOLD
Download Details >
#6

Cullerlie with Porch

3 BED SEMI-DETACHED

SOLD
Download Details >

Cullerlie-Porch (C1, C3)

3 Bedroom

SOLD
#18

Dunbeath

4 BED DETACHED (WITH SINGLE GARAGE)

SOLD
Download Details >
#16

Callanish

4 BED DETACHED (with Single Garage)

SOLD
Download Details >
D
#24

Cullerlie with Canopy (D)

3 BED SEMI-DETACHED

Available Plots:
Download Details >
#24

Cullerlie with Canopy (D)

3 BED SEMI-DETACHED

SOLD
Download Details >
#6

Cullerlie with Porch

3 BED SEMI-DETACHED

SOLD
Download Details >
#1

Achmore

3 BED SEMI-DETACHED

SOLD
Download Details >
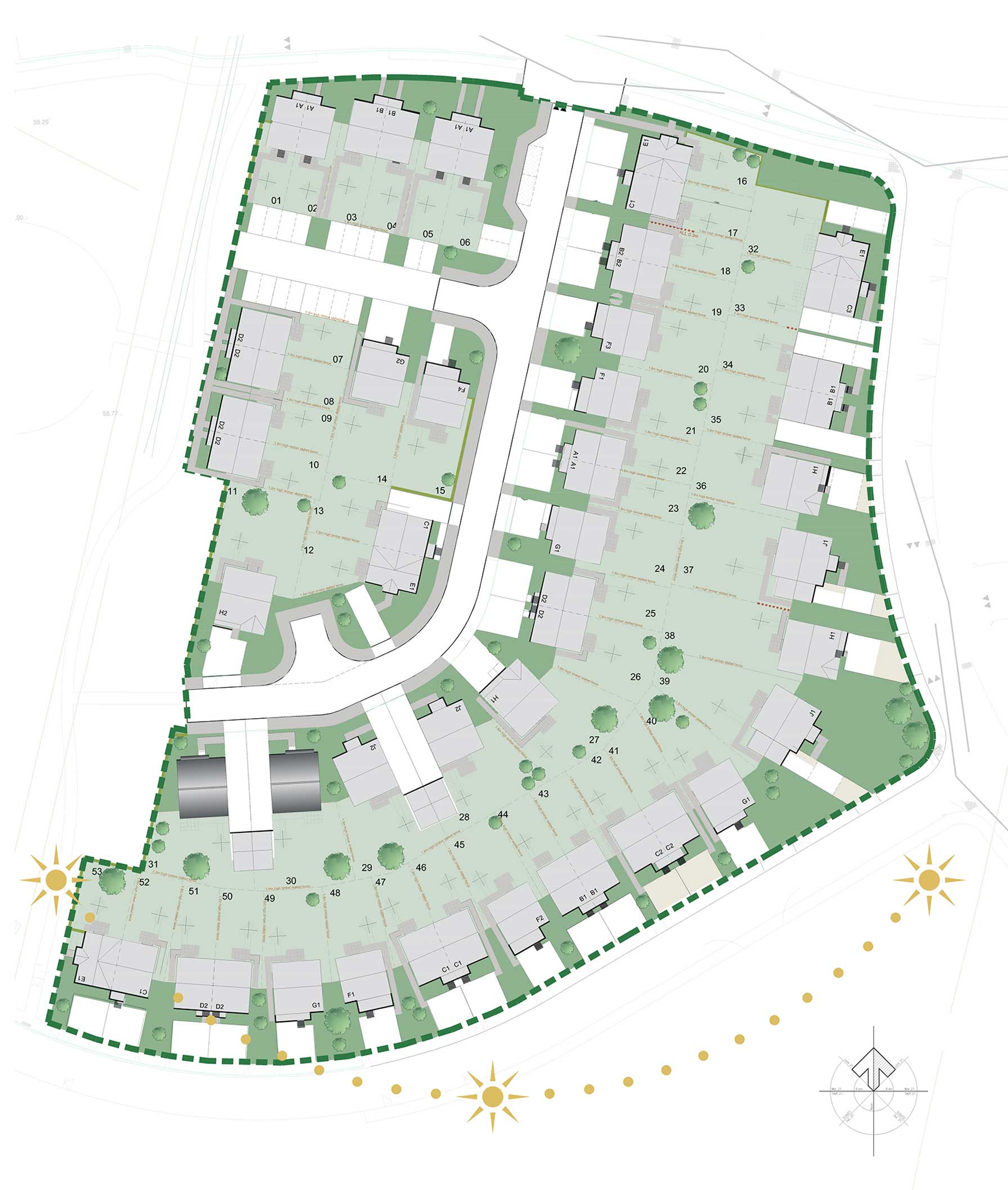
Crest of Lochter Site Plan
Plot No.
Housetype
Bedroom(s)
Price
Status
View
1
Balbirnie
2 BED Semi-Detached
SOLD
Sold
2
Balbirnie
2 BED Semi-Detached
SOLD
Sold
3
Kintraw
3 bed end terraced
SOLD
Sold
4
Kintraw
3 bed end terraced
SOLD
Sold
5
Balbirnie
2 BED Semi-Detached
SOLD
Sold
6
Balbirnie
2 BED Semi-Detached
SOLD
Sold
7
Cullerlie with Canopy (D)
3 BED SEMI-DETACHED
Showhome
Sold
8
Cullerlie with Canopy (D)
3 BED SEMI-DETACHED
SOLD
Sold
9
Cullerlie with Canopy (D)
3 BED SEMI-DETACHED
SOLD
Sold
10
Cullerlie with Canopy (D)
3 BED SEMI-DETACHED
SOLD
Sold
11
Callanish
4 BED DETACHED (with Single Garage)
SOLD
Sold
12
Achmore
3 BED SEMI-DETACHED
SOLD
Sold
13
Cullerlie with Porch
3 BED SEMI-DETACHED
SOLD
Sold
14
Callanish
4 BED DETACHED (with Single Garage)
SOLD
Sold
15
Ardblair
3 BED DETACHED (With Single Garage)
SOLD
Sold
16
Achmore
3 BED SEMI-DETACHED
SOLD
Sold
17
Cullerlie with Porch
3 BED SEMI-DETACHED
SOLD
Sold
18
Balbirnie
2 BED Semi-Detached
SOLD
Sold
19
Balbirnie
2 BED Semi-Detached
SOLD
Sold
20
Ardblair
3 BED DETACHED (With Single Garage)
SOLD
Sold
21
Ardblair
3 BED DETACHED (With Single Garage)
SOLD
Sold
22
Kintraw
3 bed end terraced
SOLD
Sold
23
Kintraw
3 bed end terraced
SOLD
Sold
24
Dunbeath
4 BED DETACHED (WITH SINGLE GARAGE)
SOLD
Sold
25
Cullerlie with Canopy (D)
3 BED SEMI-DETACHED
SOLD
Sold
26
Cullerlie with Canopy (D)
3 BED SEMI-DETACHED
SOLD
Sold
27
Callanish
4 BED DETACHED (with Single Garage)
SOLD
Sold
28
Lochbuie II - with detached garage
4 BED DETACHED (with detached garage)
SOLD
Sold
30
Ormaig II - with detached garage
4 BED DETACHED (with detached garage)
SOLD
Sold
31
Ormaig II - with detached garage
4 BED DETACHED (with detached garage)
SOLD
Sold
29
Lochbuie II - with detached garage
4 BED DETACHED (with detached garage)
SOLD
Sold
32
Achmore
3 BED SEMI-DETACHED
SOLD
Sold
33
Cullerlie with Porch
3 BED SEMI-DETACHED
SOLD
Sold
34
Kintraw
3 bed end terraced
SOLD
Sold
35
Kintraw
3 bed end terraced
SOLD
Sold
36
Callanish
4 BED DETACHED (with Single Garage)
SOLD
Sold
37
Lochbuie - with single garage
4 BED DETACHED (WITH SINGLE GARAGE)
SOLD
Sold
38
Callanish
4 BED DETACHED (with Single Garage)
SOLD
Sold
39
Lochbuie - with single garage
4 BED DETACHED (WITH SINGLE GARAGE)
SOLD
Sold
40
Dunbeath
4 BED DETACHED (WITH SINGLE GARAGE)
SOLD
Sold
41
Cullerlie with Porch
3 BED SEMI-DETACHED
SOLD
Sold
42
Cullerlie with Porch
3 BED SEMI-DETACHED
SOLD
Sold
43
Kintraw
3 bed end terraced
SOLD
Sold
44
Kintraw
3 bed end terraced
SOLD
Sold
45
Ardblair
3 BED DETACHED (With Single Garage)
SOLD
Sold
46
Cullerlie with Porch
3 BED SEMI-DETACHED
SOLD
Sold
47
Cullerlie-Porch (C1, C3)
3 Bedroom
SOLD
Sold
48
Dunbeath
4 BED DETACHED (WITH SINGLE GARAGE)
SOLD
Sold
49
Callanish
4 BED DETACHED (with Single Garage)
SOLD
Sold
50
Cullerlie with Canopy (D)
3 BED SEMI-DETACHED
£254,990
Available
51
Cullerlie with Canopy (D)
3 BED SEMI-DETACHED
SOLD
Sold
52
Cullerlie with Porch
3 BED SEMI-DETACHED
SOLD
Sold
53
Achmore
3 BED SEMI-DETACHED
SOLD
Sold

More Property Types

cullerlie canopy

Cullerlie with Canopy (D)

3 BED SEMI-DETACHED

Price: FROM £256,990

Download Details >
cullerlie porch

Cullerlie with Porch

3 BED SEMI-DETACHED

Price: FROM £262,990

Download Details >
Chap Homes Lochter roca

These contemporary homes are impressive inside and out.

Outside, charcoal grey windows and doors complement grey feature stone, lending a crisp, modern finish.

Inside oak finished doors, quality Nobelia kitchens fitted with fridge freezer, oven, hob and cooker hood. Bathrooms fitted with Roca sanitary ware , vanity units, heated towel rails and Porcelanosa tiles.

 EV Chargers and Air source heat pump and solar panels making Chap Homes the greener option.

20240712 CHAP CrestOfLochter 045

Last Home Remaining Three Bedroom Cullerlie

Luxury finishings, fitted wardrobes in bedrooms 1 and 2, Living area made for families, and the most exceptional cupboards space  make the Cullerlie  ideal for growing families or downsizers alike.

Driveway with EV charger and space for 2 cars, stunning views over the countryside and easy access to Inverurie's shops, restaurants and cafes. 

 

 

And inside each high specification property you’ll find quality-fitted Roca Spanish bathrooms and en-suites, together with German Nobilia kitchens with integrated modern appliances.

Location

boy v2

From nearby Bennachie to the famous North Sea coast, if you love the outdoors, you’re truly spoilt for choice.

bike bennachie

You’ll find the development off the Oldmeldrum Road leading into Inverurie town centre.

For commuters, the train station and town centre are less than a mile away, while the A96 trunk road gets you into Aberdeen in around half an hour.

coffee dog walking

And in a part of the country known for outstanding local produce, it’s no surprise you’ll find a load of great places to eat.

This includes the Kilted Frog delicatessen in West High Street, the renowned Fennel Restaurant, the Drouthy Laird for pub grub, and the nearby Ardrennan restaurant.

Property Types

More Property Types

cullerlie canopy

Cullerlie with Canopy (D)

3 BED SEMI-DETACHED

Price: FROM £256,990

Download Details >
cullerlie porch

Cullerlie with Porch

3 BED SEMI-DETACHED

Price: FROM £262,990

Download Details >

Specification

Chap Homes Lochter roca

These contemporary homes are impressive inside and out.

Outside, charcoal grey windows and doors complement grey feature stone, lending a crisp, modern finish.

Inside oak finished doors, quality Nobelia kitchens fitted with fridge freezer, oven, hob and cooker hood. Bathrooms fitted with Roca sanitary ware , vanity units, heated towel rails and Porcelanosa tiles.

 EV Chargers and Air source heat pump and solar panels making Chap Homes the greener option.

20240712 CHAP CrestOfLochter 045

Last Home Remaining Three Bedroom Cullerlie

Luxury finishings, fitted wardrobes in bedrooms 1 and 2, Living area made for families, and the most exceptional cupboards space  make the Cullerlie  ideal for growing families or downsizers alike.

Driveway with EV charger and space for 2 cars, stunning views over the countryside and easy access to Inverurie's shops, restaurants and cafes. 

 

 

And inside each high specification property you’ll find quality-fitted Roca Spanish bathrooms and en-suites, together with German Nobilia kitchens with integrated modern appliances.

Prices/Availability

Plot No.
Housetype
Bedroom(s)
Price
Status
View
1
Balbirnie
2 BED Semi-Detached
SOLD
Sold
2
Balbirnie
2 BED Semi-Detached
SOLD
Sold
3
Kintraw
3 bed end terraced
SOLD
Sold
4
Kintraw
3 bed end terraced
SOLD
Sold
5
Balbirnie
2 BED Semi-Detached
SOLD
Sold
6
Balbirnie
2 BED Semi-Detached
SOLD
Sold
7
Cullerlie with Canopy (D)
3 BED SEMI-DETACHED
Showhome
Sold
8
Cullerlie with Canopy (D)
3 BED SEMI-DETACHED
SOLD
Sold
9
Cullerlie with Canopy (D)
3 BED SEMI-DETACHED
SOLD
Sold
10
Cullerlie with Canopy (D)
3 BED SEMI-DETACHED
SOLD
Sold
11
Callanish
4 BED DETACHED (with Single Garage)
SOLD
Sold
12
Achmore
3 BED SEMI-DETACHED
SOLD
Sold
13
Cullerlie with Porch
3 BED SEMI-DETACHED
SOLD
Sold
14
Callanish
4 BED DETACHED (with Single Garage)
SOLD
Sold
15
Ardblair
3 BED DETACHED (With Single Garage)
SOLD
Sold
16
Achmore
3 BED SEMI-DETACHED
SOLD
Sold
17
Cullerlie with Porch
3 BED SEMI-DETACHED
SOLD
Sold
18
Balbirnie
2 BED Semi-Detached
SOLD
Sold
19
Balbirnie
2 BED Semi-Detached
SOLD
Sold
20
Ardblair
3 BED DETACHED (With Single Garage)
SOLD
Sold
21
Ardblair
3 BED DETACHED (With Single Garage)
SOLD
Sold
22
Kintraw
3 bed end terraced
SOLD
Sold
23
Kintraw
3 bed end terraced
SOLD
Sold
24
Dunbeath
4 BED DETACHED (WITH SINGLE GARAGE)
SOLD
Sold
25
Cullerlie with Canopy (D)
3 BED SEMI-DETACHED
SOLD
Sold
26
Cullerlie with Canopy (D)
3 BED SEMI-DETACHED
SOLD
Sold
27
Callanish
4 BED DETACHED (with Single Garage)
SOLD
Sold
28
Lochbuie II - with detached garage
4 BED DETACHED (with detached garage)
SOLD
Sold
30
Ormaig II - with detached garage
4 BED DETACHED (with detached garage)
SOLD
Sold
31
Ormaig II - with detached garage
4 BED DETACHED (with detached garage)
SOLD
Sold
29
Lochbuie II - with detached garage
4 BED DETACHED (with detached garage)
SOLD
Sold
32
Achmore
3 BED SEMI-DETACHED
SOLD
Sold
33
Cullerlie with Porch
3 BED SEMI-DETACHED
SOLD
Sold
34
Kintraw
3 bed end terraced
SOLD
Sold
35
Kintraw
3 bed end terraced
SOLD
Sold
36
Callanish
4 BED DETACHED (with Single Garage)
SOLD
Sold
37
Lochbuie - with single garage
4 BED DETACHED (WITH SINGLE GARAGE)
SOLD
Sold
38
Callanish
4 BED DETACHED (with Single Garage)
SOLD
Sold
39
Lochbuie - with single garage
4 BED DETACHED (WITH SINGLE GARAGE)
SOLD
Sold
40
Dunbeath
4 BED DETACHED (WITH SINGLE GARAGE)
SOLD
Sold
41
Cullerlie with Porch
3 BED SEMI-DETACHED
SOLD
Sold
42
Cullerlie with Porch
3 BED SEMI-DETACHED
SOLD
Sold
43
Kintraw
3 bed end terraced
SOLD
Sold
44
Kintraw
3 bed end terraced
SOLD
Sold
45
Ardblair
3 BED DETACHED (With Single Garage)
SOLD
Sold
46
Cullerlie with Porch
3 BED SEMI-DETACHED
SOLD
Sold
47
Cullerlie-Porch (C1, C3)
3 Bedroom
SOLD
Sold
48
Dunbeath
4 BED DETACHED (WITH SINGLE GARAGE)
SOLD
Sold
49
Callanish
4 BED DETACHED (with Single Garage)
SOLD
Sold
50
Cullerlie with Canopy (D)
3 BED SEMI-DETACHED
£254,990
Available
51
Cullerlie with Canopy (D)
3 BED SEMI-DETACHED
SOLD
Sold
52
Cullerlie with Porch
3 BED SEMI-DETACHED
SOLD
Sold
53
Achmore
3 BED SEMI-DETACHED
SOLD
Sold